Exterieur
Wanneer u alle relevante documentatie aanlevert—zoals 2D-tekeningen, plattegronden (al dan niet geschetst), bij voorkeur voorzien van maatvoering, aangevuld met foto’s—wordt deze informatie vertaald naar een 3D-model. U ontvangt eerst een basisweergave ter beoordeling, waarbij er ruimte is voor aanpassingen.
Na uw goedkeuring vormt dit model de basis voor de definitieve visualisaties en impressies, inclusief kleuren, materialen, texturen en omgevingselementen zoals vegetatie. De eerste beelden worden in lage resolutie aangeleverd voor controle en afstemming. Uiteindelijk wordt het traject afgerond met hoogwaardige, fotorealistische beelden die uw wensen nauwkeurig weerspiegelen.

Interieur
In tegenstelling tot een exterieur heeft het niet veel zin om bij de meeste interieurontwerpen een tussentijds eenvoudig model te gebruiken. Die beginnen direct met texturen. U krijgt tussendoor diverse visualisaties en impressieweergaven op lage resolutie.
Vergoeding
Voor interieuren kost het u 120 euro. Indien gewenst, krijgt u ook een VR-360 image. Mocht u bijvoorbeeld een hele woning in 3D willen laten modelleren, inclusief visualisaties, VR, 360’s en meer, dan is de vergoeding uiteraard per verdieping. Exterieur is vergelijkbaar met een interieur. Die vergoeding wordt gebruikt om de software licenties en hardware up to date te houden. De vergoeding betaald u pas aan het einde van het traject, wanneer alles naar tevredenheid is opgeleverd.
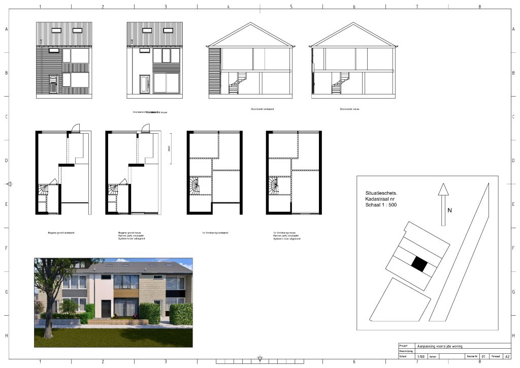
Tekeningen
Op verzoek kunnen tekeningen worden geleverd. Plattegronden, aanzichten, doorsneden en overzicht tekeningen zijn allemaal mogelijk. Bouwtekeningen en berekeningen, bv voor vergunningaanvraag behoren niet tot de mogelijkheden. Onder een voorbeeld.
